All sided section and auto-cad drawing details of local hospital dwg file
Description
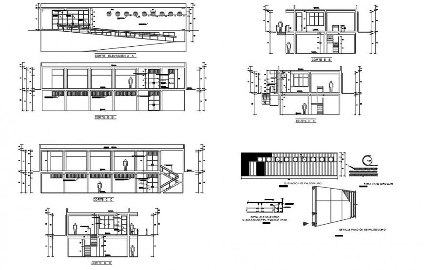
All sided section and auto-cad drawing details of local hospital that includes a detailed view of flooring view with indoor and outdoor doors and windows view and staircase elevation and sectional view details, balcony view with wall design, parking area and dimensions and roof or terrace view and much more of hospital building details.

Uploaded by:
Eiz
Luna

