Roof section and water system plumbing structure cad drawing details dwg file
Description
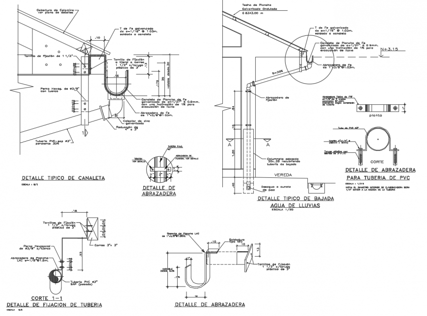
Roof section and water system plumbing structure cad drawing details that includes a detailed view of cover protection hm separating layer, thermal insulation panel type with shaped plate for bead seaming, waterproofing and slope formation layer and elastic expansion joint details provided. Aluminum joinery stud with elastic sealing gasket, double sheet glass and Water-resistant concrete treatment, false ceiling of plaster plates and cement-glue adhesive and much more of plumbing details.

Uploaded by:
Eiz
Luna

