House apartment floor plan detail 2d drawing in autocad
Description
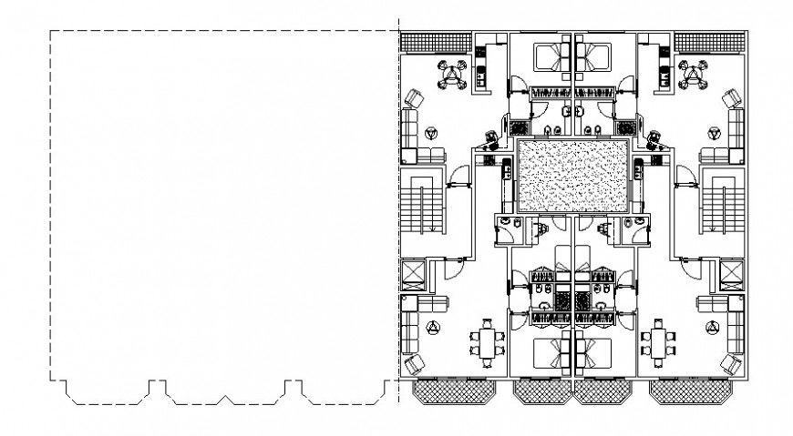
House apartment floor plan detail 2d drawing in autocad which includes a work plan of the house with floor level details and room area details. Sanitary toilet and bathroom with staircase area details are also included in the drawing.

Uploaded by:
Eiz
Luna

