House apartment details 2d drawing work plan in autocad
Description
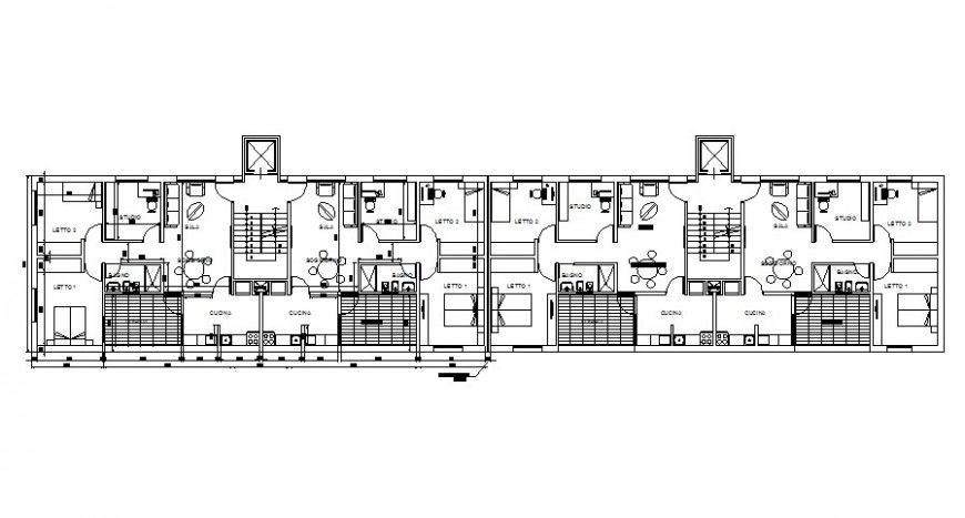
House apartment details 2d drawing work plan in autocad which includes center line plan of housing units with different rooms details of bedroom area drawing room area with kitchen and dining area details are also included in the drawing. Staircase and floor level details are also shown in the drawing.

Uploaded by:
Eiz
Luna

