Floor plan of hotel residence in auto cad software
Description
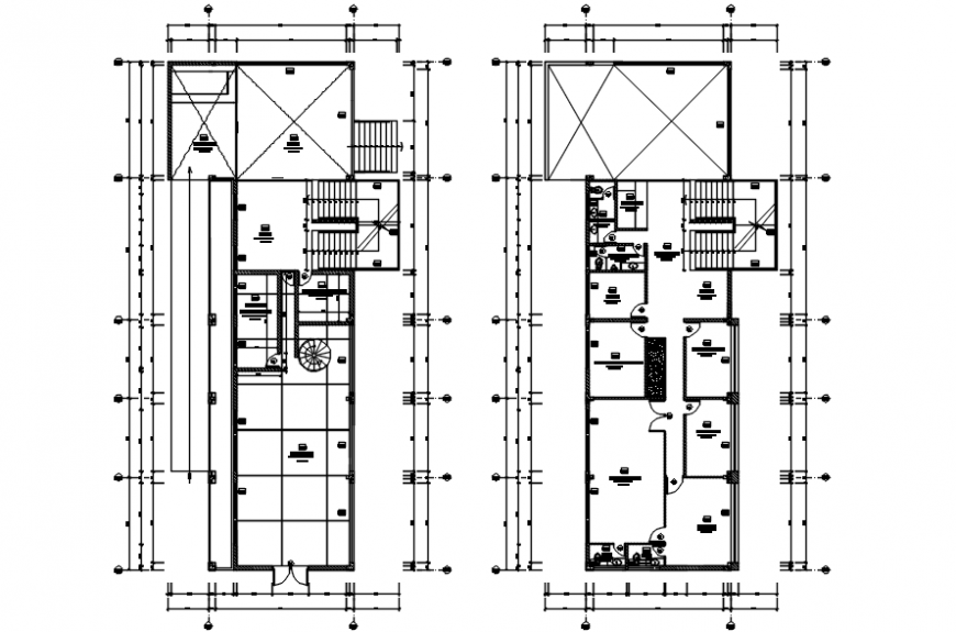
Floor plan of hotel residence in auto cad software in plan include detail of main entrance reception lobby resident room washing area maintenance room circulation wall stair door and window positional detail and necessary dimension.

Uploaded by:
Eiz
Luna

