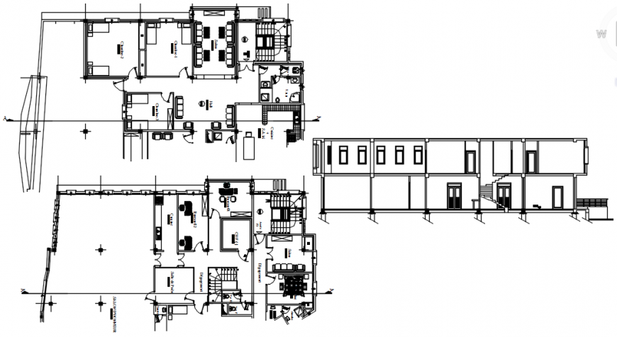
Floor plan and elevation of restaurant in auto cad software
Description
Floor plan and elevation of restaurant in auto cad software in plan with detail of main entrance door burro chamber washing area VIP lounge access wall customer room with chamber and necessary dimension and floor view in elevation.
Uploaded by:
Eiz
Luna

