Elevation and section of bathroom for sport area in auto cad
Description
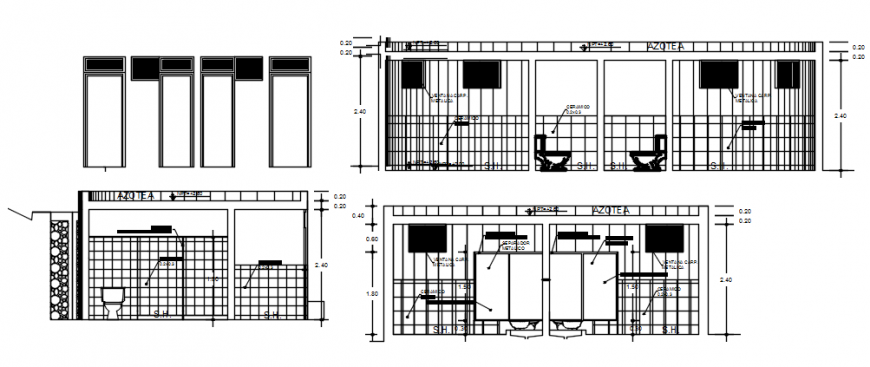
Elevation and section of bathroom for sport area in auto cad include detail of wall support water closet wash basin water tube line door mesh in window ceramic flooring door floor and floor level with necessary dimension.
File Type:
DWG
File Size:
3.5 MB
Category::
Interior Design
Sub Category::
Bathroom Interior Design
type:
Gold

Uploaded by:
Eiz
Luna

