Meditation and Relaxation Floor Plan Layout with Furniture CAD File
Description
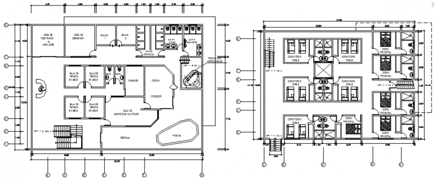
This AutoCAD file a detailed floor plan for meditation and relaxation spaces, including furniture placement, interior layouts, and structural details. Architects and interior designers can use this file to plan, visualize, and execute residential or commercial projects efficiently. Ensure precise measurements, professional-quality execution, and a streamlined workflow. This ready-to-use AutoCAD File helps maintain high design standards and effective space utilization for meditation and relaxation areas.

Uploaded by:
Eiz
Luna

