Residential House
Description
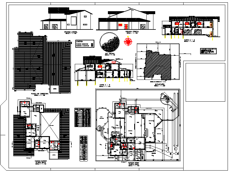
Residential House Download file, A house plan is a set of construction or working drawings that define all the construction specifications of a residential house such as dimensions, materials, layouts, installation methods and techniques. Residential House design, Residential House DWG file

Uploaded by:
Jafania
Waxy
