2d view of Kitchen plan and elevation drawing in autocad
Description
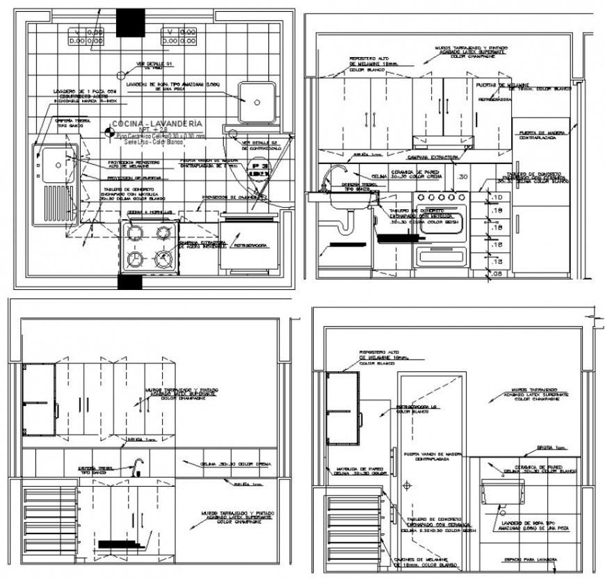
Kitchen plan and elevation drawing in autocad which includes kitchen interior furniture and appliances details. Different side elevation of gas-stove platform and other appliances details of the kitchen area.
File Type:
DWG
File Size:
351 KB
Category::
Construction
Sub Category::
Kitchen And Remodeling Details
type:
Gold

Uploaded by:
Eiz
Luna

