Extension structural glazing and window revised plan drawing details of clinic dwg file
Description
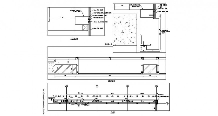
Extension structural glazing and window revised plan drawing details of clinic that includes a detailed view of window elevation, welded plate for grappling the clamp, double swing handle (with placement accessories) with reinforcement rib and expanded metal and ceramic block details, ceramic with block, lintel 2 irons with wood cap and frame and much more of structure details.

Uploaded by:
Eiz
Luna

