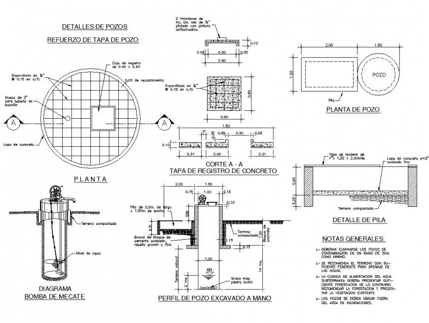
Portable water well detail plan and section in AutoCAD
Description
Portable water well detail plan and section in AutoCAD which includes concrete masonry and specifications details. Work plan and sectional details of well is also provided in drawing with dimension and hidden line details.

Uploaded by:
Eiz
Luna

