Residential multifamily apartment building distribution layout plan cad drawing details dwg file
Description
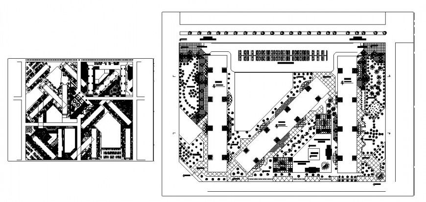
Residential multifamily apartment building distribution layout plan cad drawing details that includes a detailed view of gate, parking floor, garden area, main entry house door, drawing room and living room with family hall details kitchen and dining area, indoor staircases and laundry area and balcony, details and bedroom or master bedroom, toilets and bathroom with indoor doors, furniture details and much more of house building project.

Uploaded by:
Eiz
Luna

