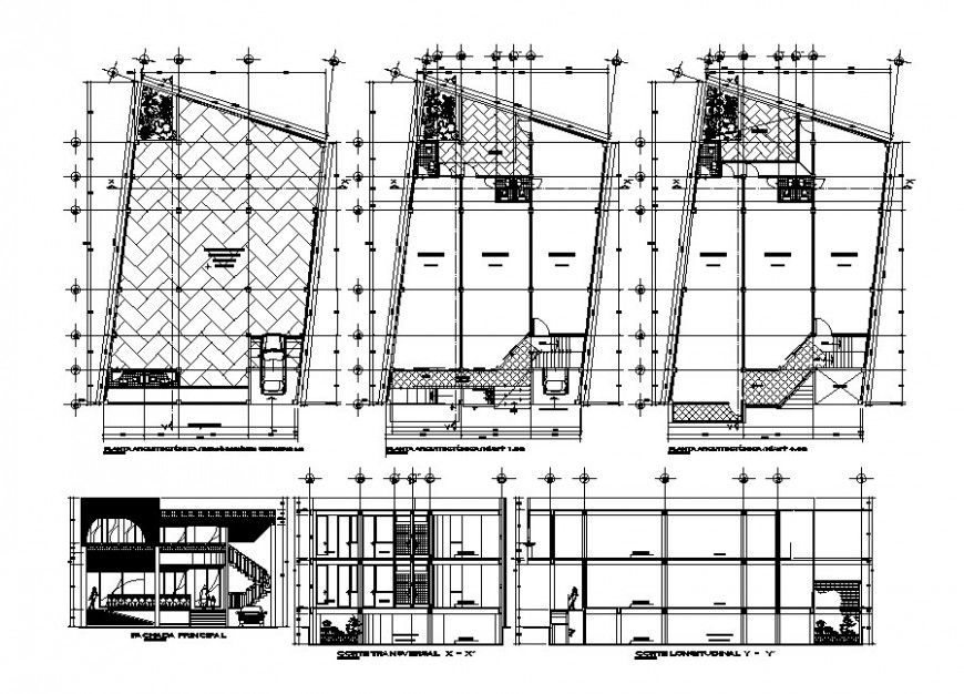
Two-story store all sided section, floor plan and auto-cad drawing details of store dwg file
Description
Two-story store all sided section, floor plan and auto-cad drawing details that includes a detailed view of flooring view with doors and windows view and staircase view details, balcony view with wall design, dimensions and roof or terrace view, staircase section and wall sectional details, parking and garden area details, reception and billing counter details, sanitary facilities details and much more of store details.

Uploaded by:
Eiz
Luna

