Commercial community center plan and construction cad drawing details dwg file
Description
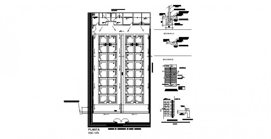
Commercial community center plan and construction cad drawing details that includes a detailed view of free auto-cad file with layer- wall core polystyrene base material thickness of layer-3 of wall of to the base of concrete of thickness and concrete chain with rebar steel rod details and stirrup for chain frame details, Hollow for fastening and assembly with main entry gate, children play area and common lobby, theater and passage details, display area and shopping plaza department, green space, gallery and theme restaurant details, viewing gallery and much more of center details.

Uploaded by:
Eiz
Luna
