Floor plan and elevation of hospital building autocad file
Description
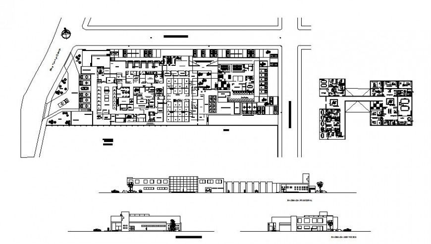
Floor plan and elevation of hospital building autocad file which includes furniture layout details of building with road pavement networks and work plan of the hospital. Different sides elevation and floor level detailing are also included in the drawing.

Uploaded by:
Eiz
Luna

