Government hospital building work plan and elevation autocad
Description
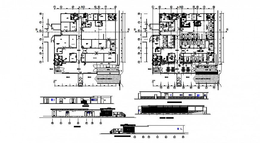
Government hospital building work plan and elevation autocad which includes parking space and floor plan details of the building. Different sides elevations and ambulance vehicle details are also included in the drawing.

Uploaded by:
Eiz
Luna

