House doors and windows installation and cover plan cad drawing details dwg file
Description
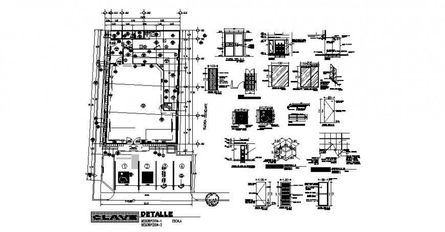
House doors and windows installation and cover plan cad drawing details that includes a detailed view of door elevation and window elevation, welded plate for grappling the clamp, door elevation details and door section details, double swing handle with reinforcement rib and expanded metal and ceramic block details, ceramic with block, lintel 2 irons with wood cap and frame and much more of door and window installation details
File Type:
DWG
File Size:
2.1 MB
Category::
Dwg Cad Blocks
Sub Category::
Windows And Doors Dwg Blocks
type:
Gold

Uploaded by:
Eiz
Luna

