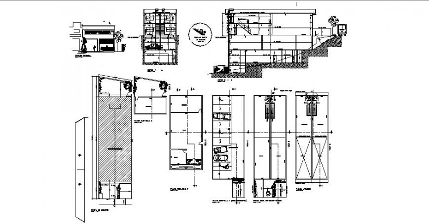
Store elevation, constructive section and structure auto-cad drawing details dwg file
Description
Store elevation, constructive section and structure auto-cad drawing details that includes a detailed view of flooring view with doors and windows view and staircase view details, balcony view with wall design, dimensions and roof or terrace view with parking area, store sections and much more of store details.
File Type:
DWG
File Size:
695 KB
Category::
Interior Design
Sub Category::
Showroom & Shop Interior
type:
Gold

Uploaded by:
Eiz
Luna

