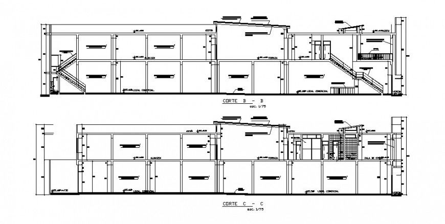
Front and back sectional drawing details of local commercial building dwg file
Description
Front and back sectional drawing details of local commercial building that includes a detailed view of flooring view with doors and windows view and staircase view details, balcony view with wall design, dimensions and roof or terrace view with multi-purpose departments like loading and transportation trucks parking area, shops and showrooms, elevators and food stores and hotels and restaurants, salon and tattoo shops, party lounge and theater with retail markets sanitary facilities of all floors of male and much more of building details.

Uploaded by:
Eiz
Luna

