Bridge construction details in autocad software
Description
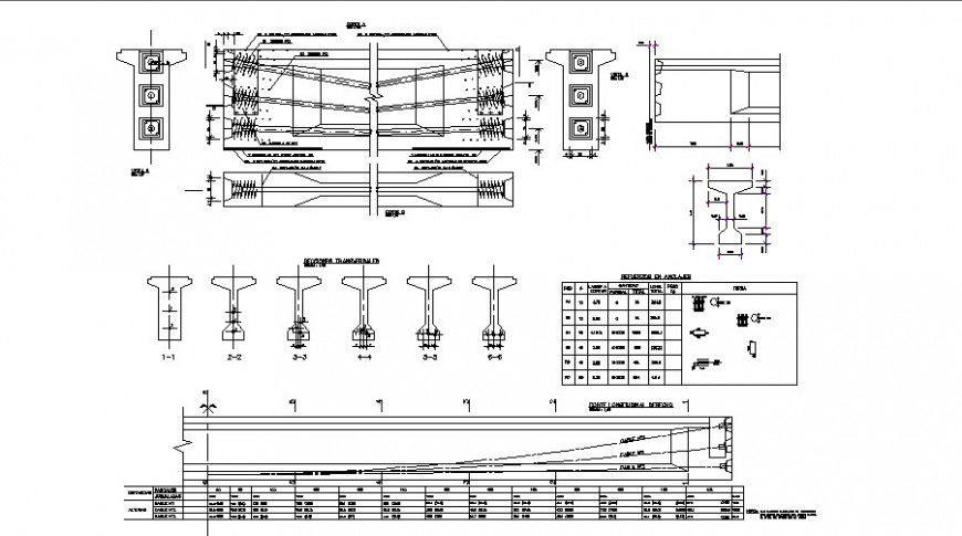
Bridge construction details in autocad software which includes top elevation of the bridge with column pier supporters details. Dimension and bridge span details are also included with section line details. Specification and legends details are also included in the drawing.

Uploaded by:
Eiz
Luna
