Kitchen area work plan and elevation 2d drawing in autocad
Description
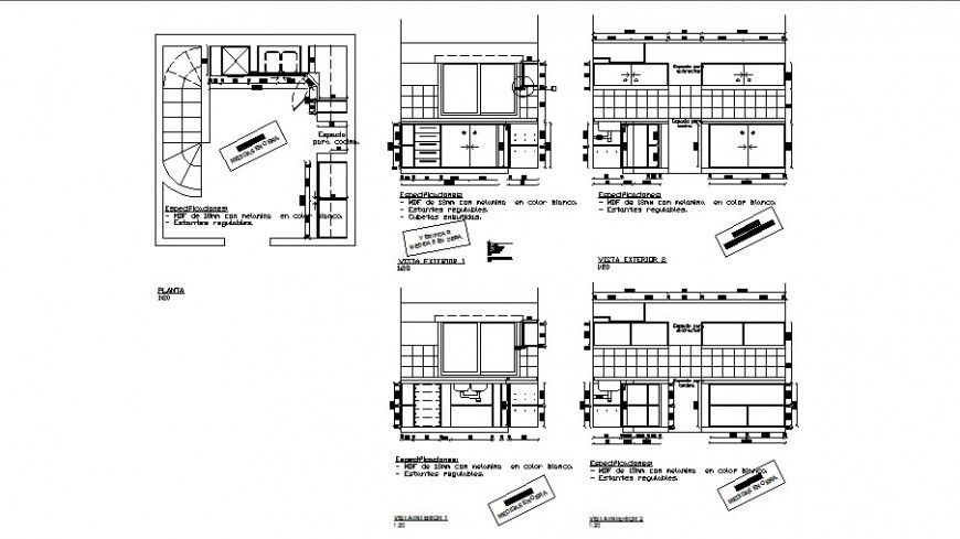
Kitchen area work plan and elevation 2d drawing in autocad which includes work plan of kitchen area with appliances and furniture details with different sides elevation and kitchen sink details.
File Type:
DWG
File Size:
116 KB
Category::
Construction
Sub Category::
Kitchen And Remodeling Details
type:
Gold

Uploaded by:
Eiz
Luna

