LOGIN
HOME
CATEGORIES
UPLOAD FILE
PRICING
HOUSE PLAN
ABOUT US
CONTACT US
Retaining wall
Home
Categories
Dwg Cad Blocks
Retaining wall
Uploaded by:
Jafania
Waxy
View Profile
View Profile
Description
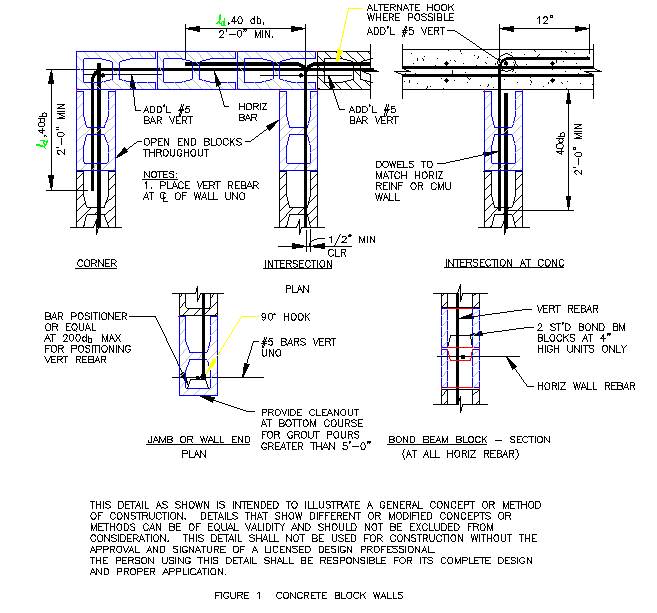
Retaining wall Download file, Retaining walls are structures designed to restrain soil to unnatural slopes. Retaining wall design, Retaining wall Detail.
File Type:
DWG
File Size:
65 KB
Category::
Dwg Cad Blocks
Sub Category::
type:
Free
Uploaded by:
Jafania
Waxy
View Profile
Download
Add to libary
find Latest
Related
Files