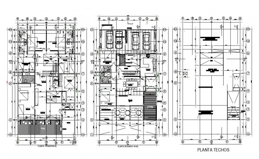
Luxuries residential bungalow first, second and cover plan cad drawing details dwg file

Luxuries residential bungalow first, second and cover plan cad drawing details dwg file
Profile

Uploaded by:

Eiz

Luna

Description

Luxuries residential bungalow first, second and cover plan cad drawing details that includes a detailed view of first floor, second floor etc with car parking area and garden details including main entry house door, drawing room and living room with family hall details kitchen and dining area, indoor staircases and laundry area and balcony, details and bedroom or master bedroom, toilets and bathroom with indoor doors, furniture details and much more of bungalow project.

Profile

Uploaded by:

Eiz

Luna

find Latest

Related Files

WhatsApp Chat