Shopping mall building floor plan and structure cad drawing details dwg file
Description
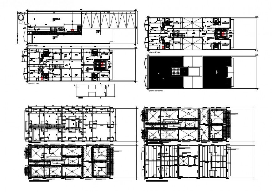
Shopping mall building floor plan and structure cad drawing details that includes a detailed view of multi-purpose departments like loading and transportation trucks parking area, shops and showrooms, elevators and food stores and hotels and restaurants, salon and tattoo shops, party lounge and theater with retail markets sanitary facilities of all floors of male and female with spa centers and horror house with foundation with side typical shoe & typical central shoe with columns and foundations shoes, cistern tank and walls of concrete arm beams flat and much more of shopping mall details.

Uploaded by:
Eiz
Luna

