Luxuries restaurant floor plan and water tank installation details dwg file
Description
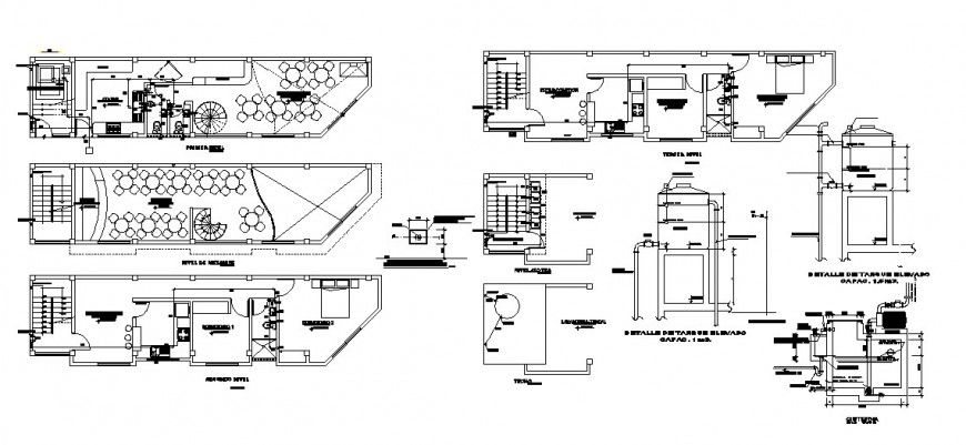
Luxuries restaurant floor plan and water tank installation details that includes a detailed view of car parking view with garden area, reception area with waiting lounge, dining area with banquet hall and kitchen and cleaning department details and staff room and sanitary facilities provides with furniture details with interior details, method of fixing water gauge meter with boundary wall, septic tank plan details, elevation and all sided sectional details with dimensions details, manhole plan details and much more of restaurant project with free download auto-cad file.

Uploaded by:
Eiz
Luna

