Reinforcement plate and constructive structure cad drawing details dwg file
Description
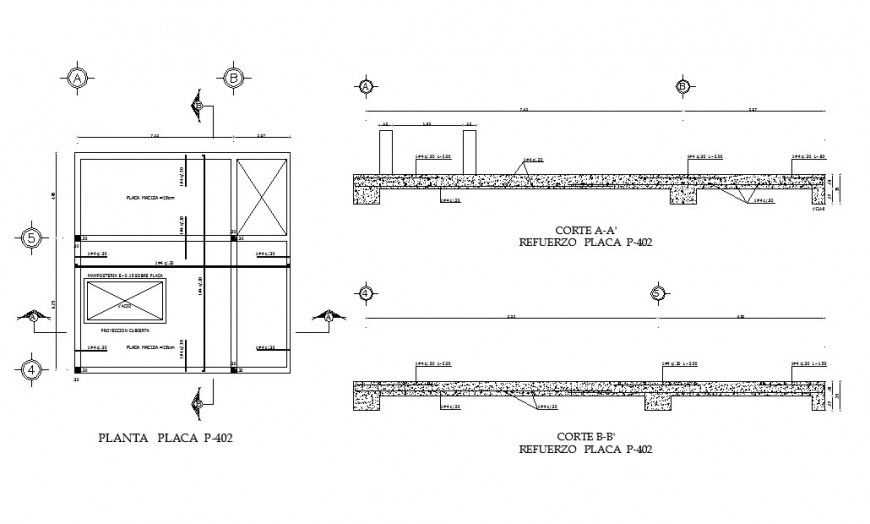
Reinforcement plate and constructive structure cad drawing details that includes a detailed view of Reinforced concrete parapet with Stuffed with tezontle with average thickness, Stuck with cement-sand mortar prop with Waterproofing based on prefabricated membrane, Wall concrete hollow block smooth finish with based on granitic acrylic resins provided and much more of structure details.
File Type:
DWG
File Size:
256 KB
Category::
Construction
Sub Category::
Concrete And Reinforced Concrete Details
type:
Gold

Uploaded by:
Eiz
Luna

