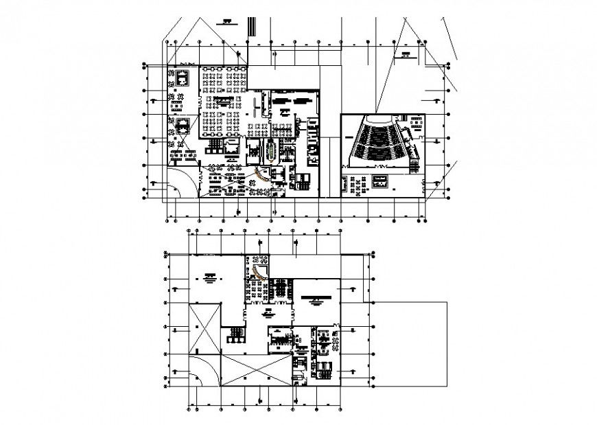
First and second floor distribution plan details of auditorium hall building dwg file
Description
First and second floor distribution plan details of auditorium hall building that includes a detailed view of main entry gate, children play area and common lobby, theater and passage details, display area and shopping plaza department, green space, gallery and theme restaurant details, viewing gallery, kitchen and waiting area, open space with sanitary facilities and much more of center details.

Uploaded by:
Eiz
Luna

