Section design of Small but classical house design drawing
Description
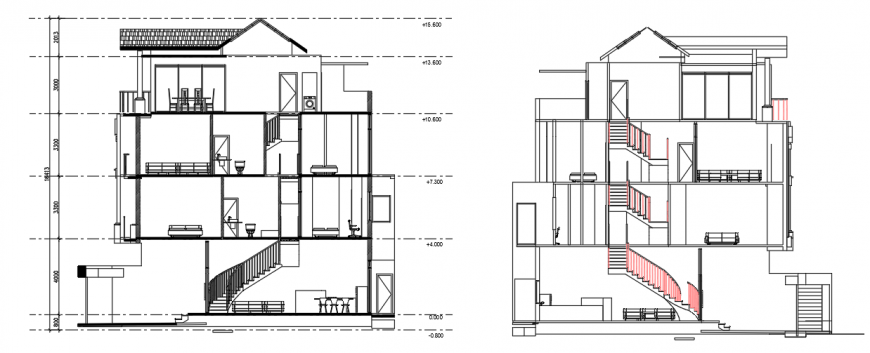
Here the Section design of Small but classical house design drawing with stair section design drawing, inner section design drawing with floor level mentioned and floor wise dimension mentioned in this auto cad file.
Uploaded by:
Eiz
Luna

