Residential house work plan and elevation autocad format
Description
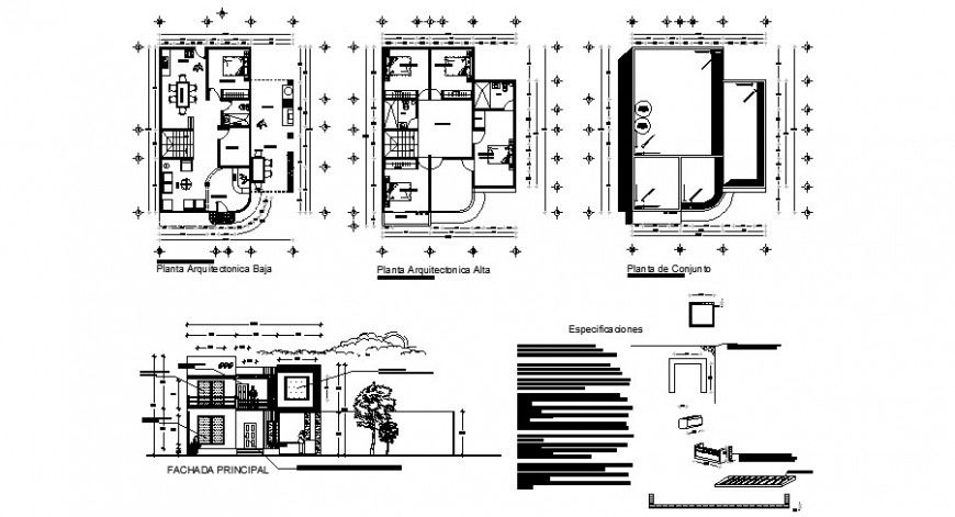
Residential housework plan and elevation autocad format which includes a work floor plan of house with leveling and floor level details. Front elevation of the house with staircase and rooms details are also included in the house.

Uploaded by:
Eiz
Luna

