Modern School
Description
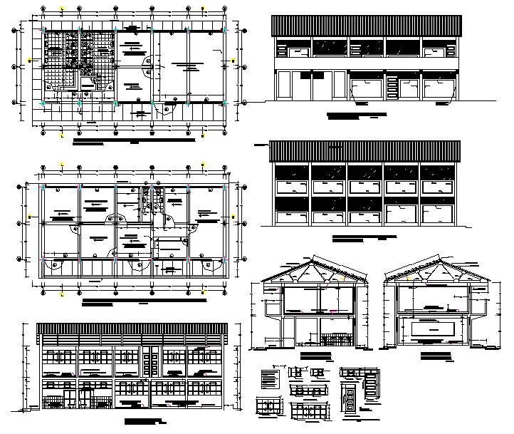
Modern School Detail, site plan, layout plan, auditorium hall, sports playground, class room, section plan and elevation design of School project.School Building plan Design DWG , School Building plan Detail. Modern School Download file, Modern School DWG file.

Uploaded by:
Jafania
Waxy

