Swim suits fashion store in a mall architecture drawing details dwg file
Description
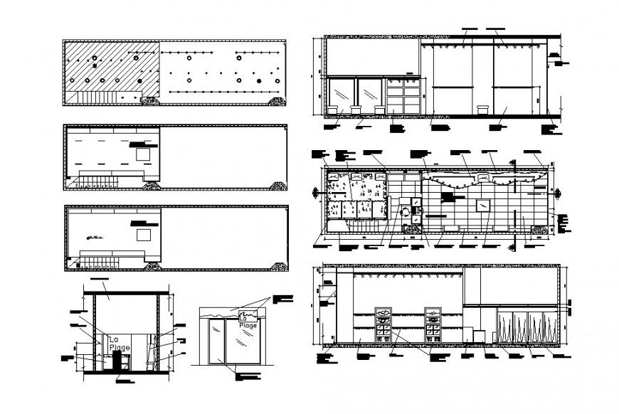
Swim suits fashion store in a mall architecture drawing details that include a detailed view of elevation and sectional details, doors and windows details, display and interior details with dimensions and measures detailed provided. furniture blocks details and much more of store details.
File Type:
DWG
File Size:
360 KB
Category::
Interior Design
Sub Category::
Showroom & Shop Interior
type:
Gold

Uploaded by:
Eiz
Luna

