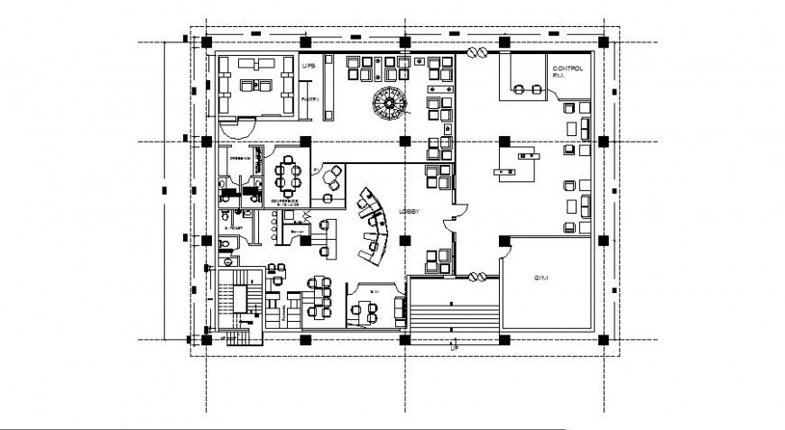
Work plan of office building units 2d drawing in autocad
Description
Work plan of office building units 2d drawing in autocad which includes furniture blocks details with staircase and dimension details. Sanitary toilet installation details and other construction blocks details are also included.

Uploaded by:
Eiz
Luna

