Encounter protective wall construction details for warehouse dwg file
Description
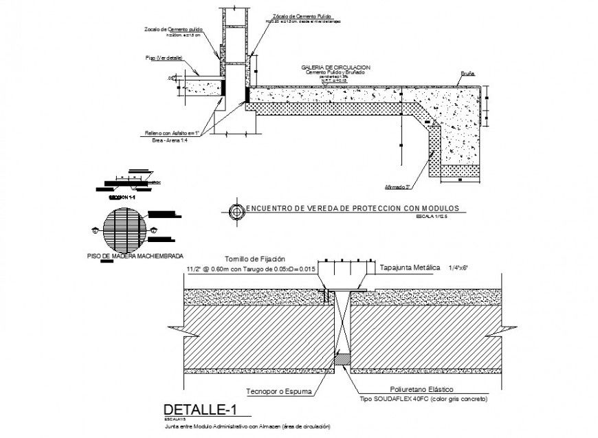
Encounter protective wall construction details for warehouse that includes a detailed view of free auto-cad file with layer- wall core polystyrene base material thickness of layer-3 of wall of to the base of concrete of thickness and concrete chain with rebar steel rod details and stirrup for chain frame details, Hollow for fastening and assembly with round so or post-tensioning provided with steel plate and reinforcement rod square and much more of wall details.
File Type:
DWG
File Size:
3.3 MB
Category::
Construction
Sub Category::
Construction Detail Drawings
type:
Gold

Uploaded by:
Eiz
Luna

