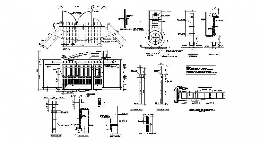
Entry gate blocks detail elevation and plan autocad drawing
Description
Entry gate blocks detail elevation and plan autocad drawing which includes compound wall details with entry gate plan and elevation details. dimension and specification details are also included in the drawing.

Uploaded by:
Eiz
Luna

