Sectional detail of column and beam structure dwg file
Description
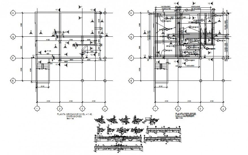
Sectional detail of column and beam structure dwg file which includes dimension details with reinforcement details in tension and compression zone and concrete masonry details. The structure is a reinforced concrete cement (RCC) structure.

Uploaded by:
Eiz
Luna

