Brick masonry wall and structural unit drawing in autocad
Description
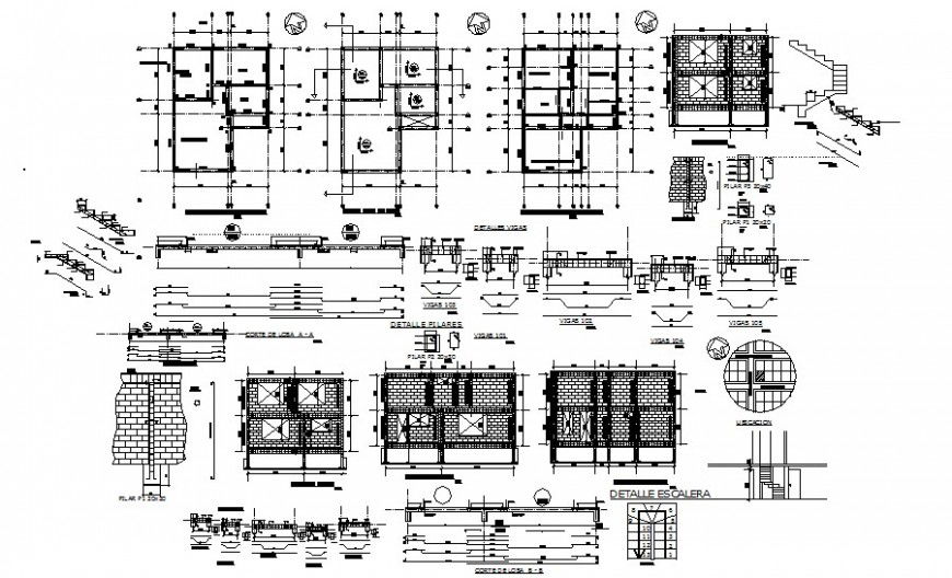
Brick masonry wall and structural unit drawing in autocad which includes compound wall details with dimension and staircase units details. The column to beam connection with reinforcement details is also included in the drawing.
File Type:
DWG
File Size:
542 KB
Category::
Construction
Sub Category::
Construction Detail Drawings
type:
Gold

Uploaded by:
Eiz
Luna

