Detail drawing of combined footing 2d view dwg file
Description
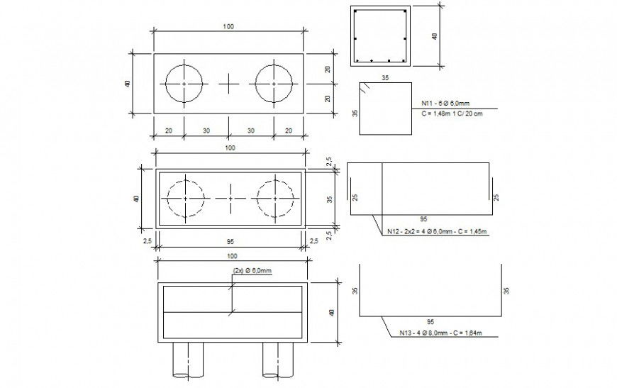
Detail drawing of combined footing 2d view dwg file which includes top elevation of foundation footing with details of reinforcement provided in tension and compression zone and the structure is a reinforced concrete cement (RCC) structure.

Uploaded by:
Eiz
Luna

