RCC structural blocks drawings in autocad
Description
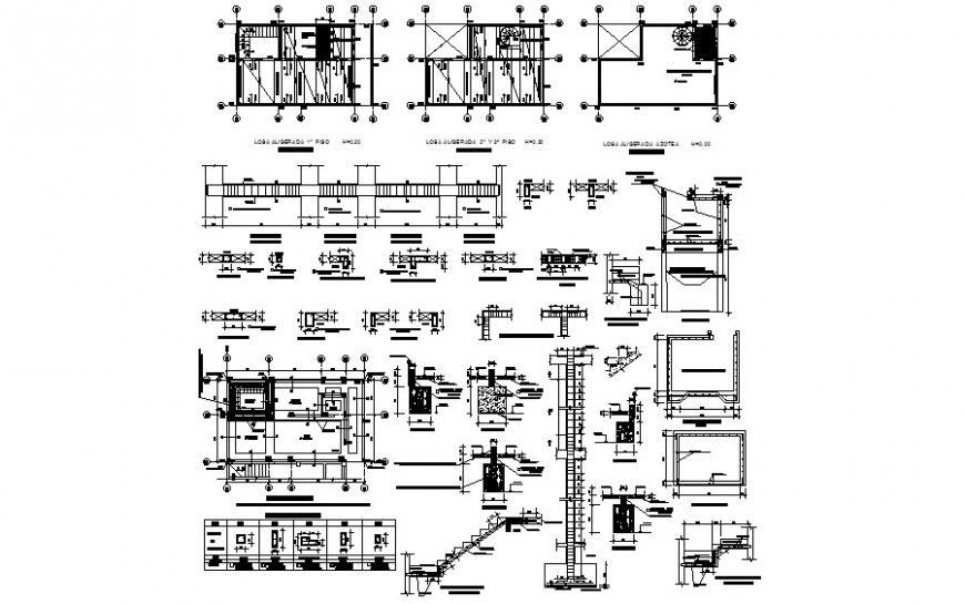
RCC structural blocks drawings in autocad which includes reinforcement details in tension and compression zone with details of column and beam structure with staircase details. Specification details and other structural details are also included in the drawing.
File Type:
DWG
File Size:
541 KB
Category::
Construction
Sub Category::
Reinforced Cement Concrete Details
type:
Gold

Uploaded by:
Eiz
Luna

