Detail plan and sectional detail of RCC structure autocad file
Description
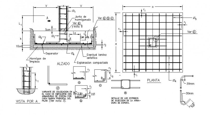
Detail plan and sectional detail of RCC structure autocad file which includes reinforcement detail in tension and compression zone with a top elevation of footing with main and distribution bars. Bar dimension and effective cover details are also included in the drawing.
File Type:
DWG
File Size:
76 KB
Category::
Construction
Sub Category::
Reinforced Cement Concrete Details
type:
Gold

Uploaded by:
Eiz
Luna

