Hospital furniture blocks of stretcher bed detail drawing in autocad
Description
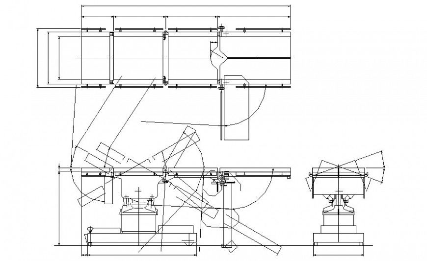
Hospital furniture blocks of stretcher bed detail drawing in autocad which includes different sides of elevation of stretcher bed like top elevation front elevation and side elevation. Dimension and center line details are also shown in the drawing.

Uploaded by:
Eiz
Luna

