RCC structural units details drawing in autocad
Description
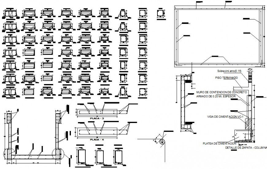
RCC structural units details drawing in autocad which includes reinforcement details in tension and compression zone and main and distribution hook up and bent up bars details with other construction units details. The structural block is a reinforced concrete cement (RCC) structure.
File Type:
DWG
File Size:
266 KB
Category::
Construction
Sub Category::
Reinforced Cement Concrete Details
type:
Gold

Uploaded by:
Eiz
Luna

