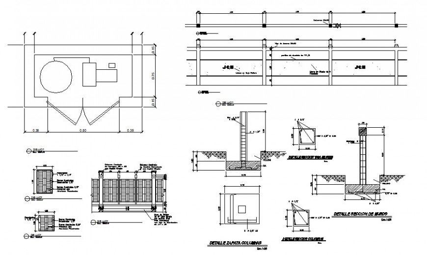
Footing structure dteail 2d drawing in autocad
Description
Footing structure dteail 2d drawing in autocad which includes reinforcement details in tension and compression zone with foundaion details and concrete masonary details. Main and distribution hook up and bent bars details are also included in the drawing.

Uploaded by:
Eiz
Luna

