Work plan of residential housing unit dwg file
Description
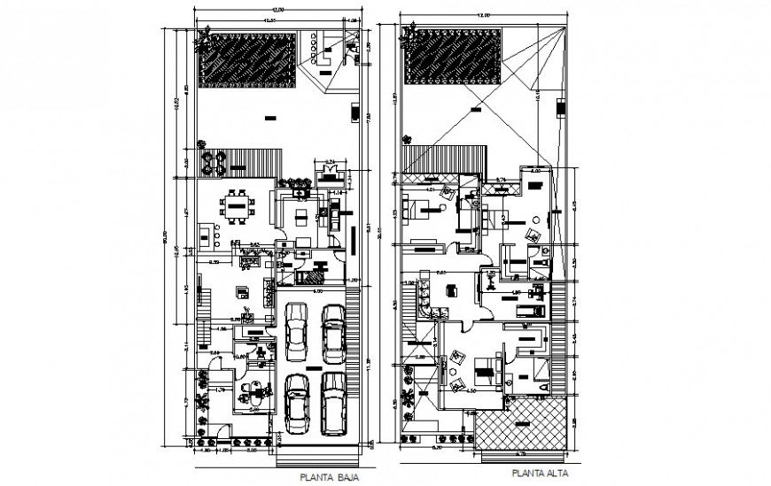
Work plan of residential housing unit dwg file which includes an interior plan of the house with dimension and furniture details in rooms. Sanitary toilet and bathroom with parking space details are also included in the drawing. Floor level and door window blocks details in the drawing.

Uploaded by:
Eiz
Luna

