Detail structural units of concrete masonry and other in autocad
Description
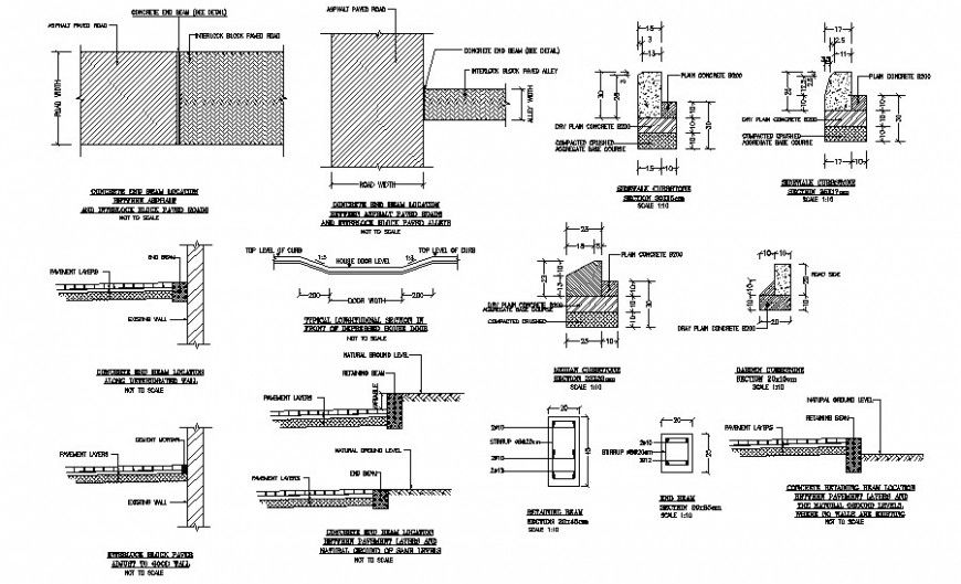
Detail structural units of concrete masonry and other in autocad which includes reinforcement details in tension and compression zone with hatching and dimension details. Concrete masonry details are also shown in the drawing.

Uploaded by:
Eiz
Luna

