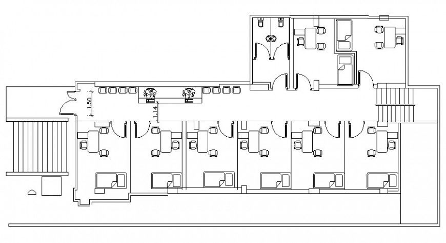
Hospital building units work plan 2d drawing in dwg format
Description
Hospital building units work plan 2d drawing in dwg format which includes room and clinic details with furniture units details dimension details. Floor level and staircase details are also included in the drawing.

Uploaded by:
Eiz
Luna

