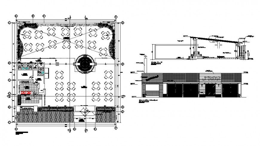
Grill restaurant elevation, section and distribution plan cad drawing details dwg file
Description
Grill restaurant elevation, section and distribution plan cad drawing details that includes a detailed view of flooring view with doors and windows view and staircase view details, balcony view with wall design with dimensions and roof or terrace view with car parking view with garden area, reception area with waiting lounge, dining area with banquet hall and kitchen and cleaning department details and staff room and sanitary facilities provides with furniture details with interior details and much more of restaurant project with free download auto-cad file.

Uploaded by:
Eiz
Luna

