Floor distribution layout plan details of luxuries villa building dwg file
Description
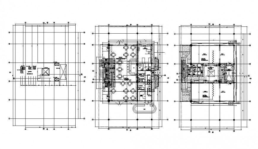
Floor distribution layout plan details of luxuries villa building that includes a detailed view of main entry house door, drawing room and living room, family hall details kitchen and dining area with entertainment department like swimming pool, auditorium hall details, spa and gym center and cafeteria and indoor staircases also provided and laundry area and balcony, details and bedroom or master bedroom, toilets and bathroom with indoor doors, furniture details and much more of villa project.

Uploaded by:
Eiz
Luna

