Detail drawing of RCC structural block in autocad software
Description
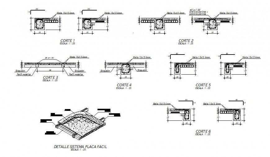
Detail drawing of RCC structural block in autocad software which includes concrete masonry details along with reinforcement details in tension and compression zone. Main and distribution hook up and bent up bars details with stirrups details are also shown in the drawing.
File Type:
DWG
File Size:
109 KB
Category::
Construction
Sub Category::
Reinforced Cement Concrete Details
type:
Gold

Uploaded by:
Eiz
Luna

