Metal bleachers staircases section and construction cad drawing details dwg file
Description
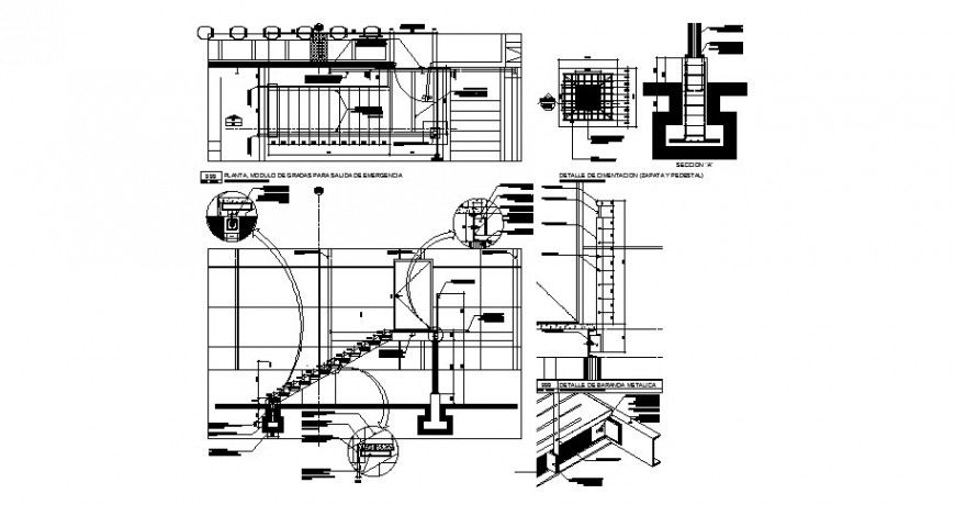
Metal bleachers staircases section and construction cad drawing details that includes a detailed view of front sectional view with main stairways and stairways sectional view of terrace stairways with vest scenario with ceramic floor and horizontal section and novice glue and steps details with supportive wooden railing installation, base floor concrete plan, wall construction dimensions view, supportive pillar view and much more of staircase details.

Uploaded by:
Eiz
Luna
